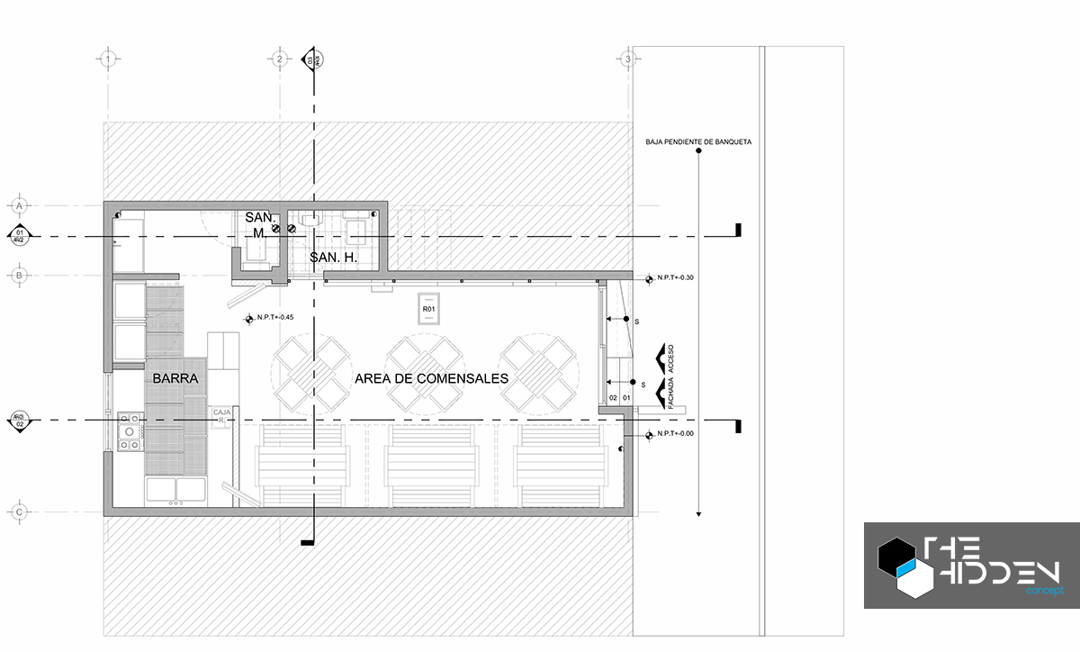
ARTCH[bar] PROJECT INFO M² 53.90 Typologie Retail Year 2020 Location MEXICO STATE Status COMPLETED Collaborator DMT Diseño